
Anbau und Umbau eines Mehrfamilienhauses, Sankt Augustin, 2019 – 2020
Leistungsphasen 3-4, Entwurf, Bauantrag

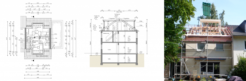
Dachgeschossausbau eines Zweifamilienhauses, Bornheim, 2019
Leistungsphasen 3-4, Entwurf, Bauantrag
Errichtung eines Doppelhauses mit einer Doppelgarage, Leichlingen, 2019 – 2020
Leistungsphasen 3-4, Entwurf, Bauantrag
Umbau und Sanierung eines Einfamilienhauses, Sankt Augustin, 2018 – 2019
Leistungsphasen 5-8, Ausführungsplanung, Bauleitung

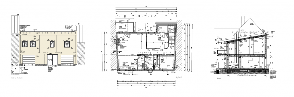
Anbau und Umbau eines Einfamilienhauses, Wachtberg, 2018 – 2019
Leistungsphasen 1-4, Entwurf, Bauantrag
Errichtung eines Einfamilienhauses, Köln 2019 – 2020,
Leistungsphasen 3-4, Entwurf, Bauantrag
Umbau und Sanierung eines Einfamilienhauses, Sankt Augustin, 2018 – 2019
Leistungsphasen 2-8, Entwurf, Bauantrag, Ausführungsplanung, Bauleitung

Neubau eines 3- Familienhauses, Neuss, 2015 – 2017
Leistungsphasen 1-7, Entwurf, Bauantrag, Ausführungsplanung, Ausschreibung

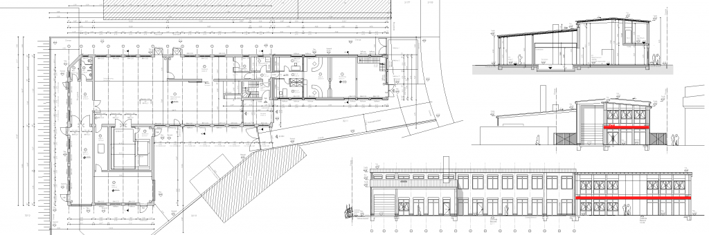
Neubau eines Geschäftshauses, Leverkusen, 2015 – 2017
Leistungsphasen 1-7, Entwurf, Bauantrag, Ausführungsplanung, Ausschreibung

Umbau von 2 denkmalgeschützen Scheunen in zwei Einfamilienhäuser, Bornheim, 2016
Leistungsphase 4, Bauantrag

Neubau einer Tischlerei, Haan, 2014 – 2019
Leistungsphasen 1-5, Entwurf, Bauantrag, Ausführungsplanung

Neubau eines Einfamilienhauses, Bornheim, 2013 – 2014,
Leistungsphasen 5-6, Ausführungsplanung und Ausschreibung

Umbau einer Wohnung eines Mehrfamilienhauses, Köln, 2013 – 2014
Leistungsphasen 1-8, Entwurf, Bauantrag, Ausführungsplanung, Ausschreibung, Bauleitung

Errichtung von 2 Gauben und Anbau an ein Reihenendhaus, Bonn, 2013
Leistungsphasen 1-5, Entwurf, Bauantrag, Ausführungsplanung

Neubau eines Mehrfamilienhauses, Monheim, 2012 – 2013
Leistungsphasen 1-3, Entwurf

Umbau einer Metzgerei in eine Gaststätte, Wiehl, 2012
Leistungsphase 4, Bauantrag
Umbau eines Büros zu einer Tierarztpraxis, Bornheim, 2011 – 2012
Leistungsphasen 1-5, Entwurf, Bauantrag, Ausführungsplanung
Neubau eines Einfamilienhauses, Odenthal, 2011 – 2012
Leistungsphasen 3-5, Entwurf, Bauantrag, Ausführungsplanung
Ausbau des Dachgeschosses eines Mehrfamilienhauses zu einer Wohnung, Köln, 2011
Leistungsphasen 4-5, Bauantrag und Ausführungsplanung
Umbau eines Ladenlokals in eine Arztpraxis, Hennef, 2011
Leistungsphasen 4-5, Bauantrag und Ausführungsplanung